- Produkta apraksts
-
Produkta aprakstsGala vāks ugunsdrošības kanāla PYROLINE® Con D EI60, tips PLCD D061220, kas sastāv no ūdens un sala izturīga vieglā stikla šķiedras betona, lai noslēgtu kanāla galus.
-
- Tehniskie dati
-
Tehniskie dati
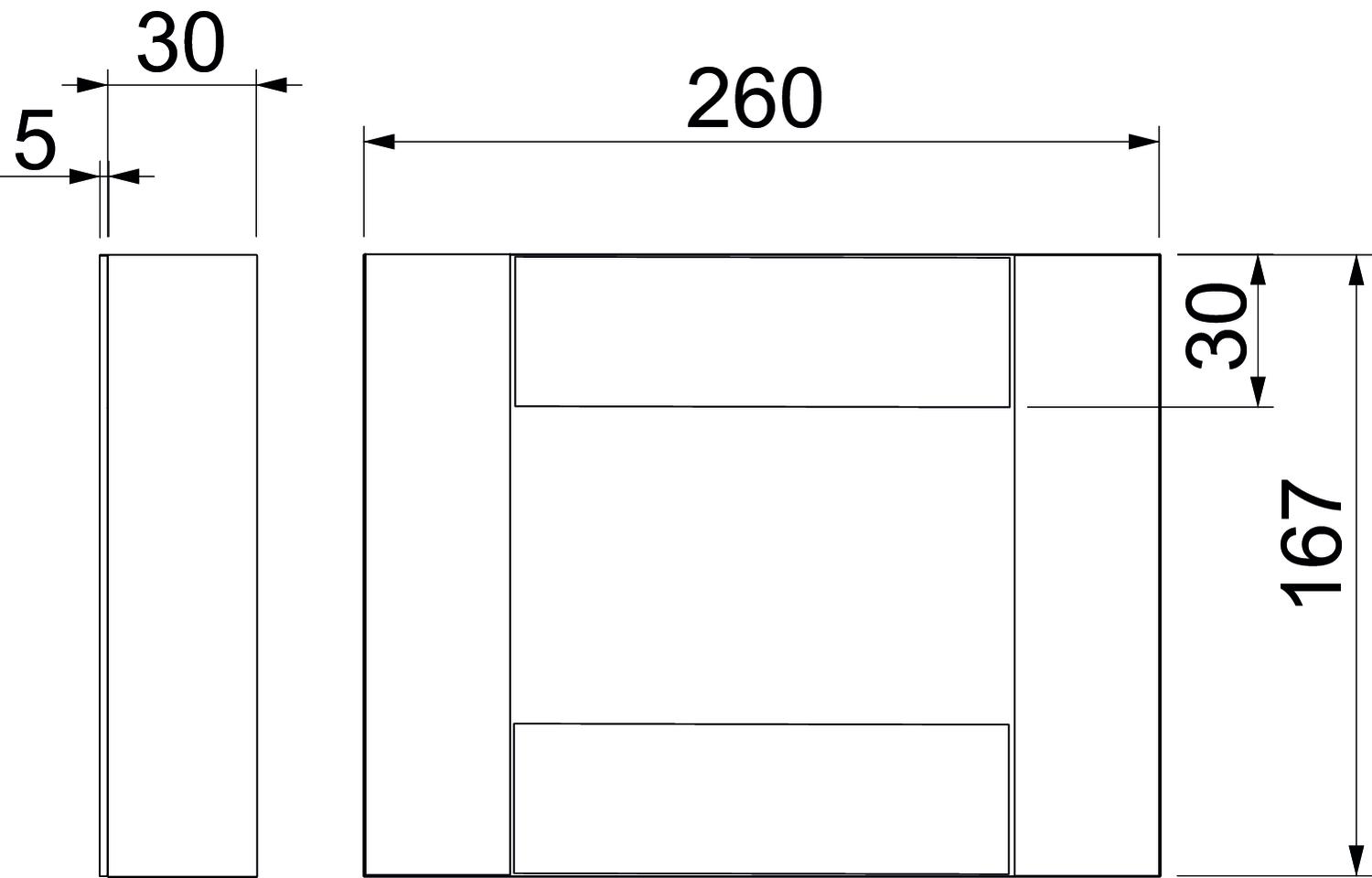
Apvalks bez Augstums 167 mm EI Klasifikācija - instalācijas kanāls 60 Garums 30 mm Izmērs 200x120 Izmērs A 30 mm Izmērs B 260 mm Izmērs H 167 mm Izmērs L 30 mm Izolācijas elementu materiāls Stiklšķiedras gāzbetons Izpildījums pa kreisi/pa labi Krāsa pelēks Materiāls Stikla šķiedras vieglbetons Platums 260 mm Saskarē ar liesmu nonākošo sānu skaits 2 - Visi tipi
- Lejupielādes
-
Datu lapa PLCD E061220 / 7215844 , 0.16MB , pdfKatalogs Fire protection ducts , 8.99MB , pdfES Atbilstības deklarācija PLCD E061220 / 7215844 , 0.19MB , pdfEkspluatācijas īpašību deklarācija PLCD E061220 / 7215844 , 0.31MB , pdfREACH Atbilstības deklarācija PLCD E061220 / 7215844 , 0.12MB , pdfRoHS Atbilstības deklarācija PLCD E061220 / 7215844 , 0.13MB , pdfPilnvarojuma apliecība Fire protection ducts PYROLINE® Con PLC , 1.30MB , pdfMontāžas instrukcija Ugunsdrošā kanāla PYROLINE® Con BSK montāžas instrukcija , 15.07MB , pdfMontāžas instrukcija Montāžas instrukcija ugunsdrošajam kanālam PYROLINE® Con PLC , 14.60MB , pdfŠim produktam nav pieejami preču apraksti
Latvija - Latviešu Valoda