- Produkta apraksts
-
Produkta aprakstsGala vāks ugunsdrošības kanāla PYROLINE® Con D EI90, tips PLCD D091220, kas sastāv no ūdens un sala izturīga vieglā stikla šķiedras betona, lai noslēgtu kanāla galus.
-
- Tehniskie dati
-
Tehniskie dati
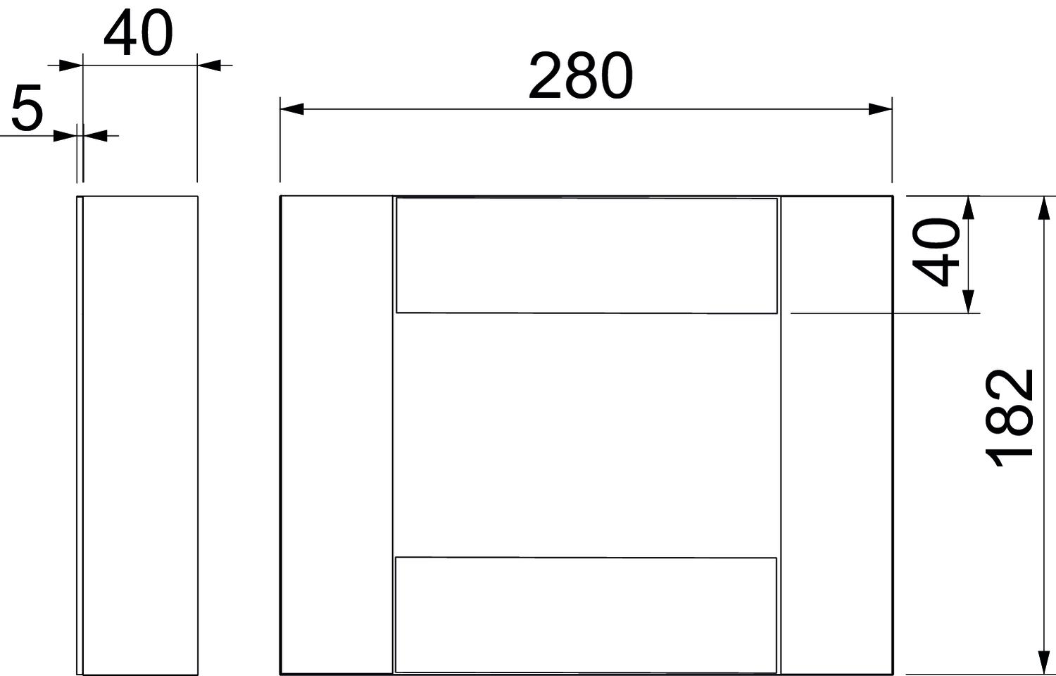
Apvalks bez Augstums 182 mm EI Klasifikācija - instalācijas kanāls 90 Garums 40 mm Izmērs 200x120 Izmērs A 40 mm Izmērs B 280 mm Izmērs H 182 mm Izmērs L 40 mm Izolācijas elementu materiāls Stiklšķiedras gāzbetons Izpildījums pa kreisi/pa labi Krāsa pelēks Materiāls Stikla šķiedras vieglbetons Platums 280 mm - Visi tipi
- Lejupielādes
-
Datu lapa PLCD E091220 / 7215854 , 0.16MB , pdfKatalogs Fire protection ducts , 8.99MB , pdfES Atbilstības deklarācija PLCD E091220 / 7215854 , 0.19MB , pdfEkspluatācijas īpašību deklarācija PLCD E091220 / 7215854 , 0.31MB , pdfREACH Atbilstības deklarācija PLCD E091220 / 7215854 , 0.12MB , pdfRoHS Atbilstības deklarācija PLCD E091220 / 7215854 , 0.13MB , pdfPilnvarojuma apliecība Fire protection ducts PYROLINE® Con PLC , 1.30MB , pdfMontāžas instrukcija Ugunsdrošā kanāla PYROLINE® Con BSK montāžas instrukcija , 15.07MB , pdfMontāžas instrukcija Montāžas instrukcija ugunsdrošajam kanālam PYROLINE® Con PLC , 14.60MB , pdfŠim produktam nav pieejami preču apraksti
Latvija - Latviešu Valoda