Kabeļu trepes SLCS 110, 3 m C30 FT

Preces Nr. 6207322 | EAN 4012196431953

3000 mm
2 mm
Produkta apraksts
Produkta apraksts
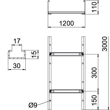
Kabeļu trepes ar 110 mm augstām malām, iemetinātiem un augšup vērstiem C30 profila spraišļiem. Ieliekta sānu mala pastiprinājumam, kas kalpo arī kā malu aizsargs. Nostiprināšana uz balsteņa notiek ar LKS 40 tipa skavām. Spraugas izmērs spraišļiem ir 16,5 mm, atbilstošais piekarapskavas tips ir 2056.
Magnētiskā ekranējuma efektivitāte bez vāka 10 dB, ar vāku 15 dB.
  • Eiropas Savienības, EG atbilstības deklarācija saskaņā ar EK direktīvām
  • UKCA atbilstības deklarācija
  • Kabeļu trepes, malas augstums 110 mm
  • Produkta vides deklarācija (EPD)
  • CO₂ pēdas nospiedums (PCF)
Tehniskie dati

Tehniskie dati

Attālums starp spraišļiem 300 mm
Augstums 110 mm
Balstu atstatums 2,0 m 3,5 kN/m
Balstu atstatums 3,0 m 1,9 kN/m
Balstu atstatums 4,0 m 1 kN/m
Balstu atstatums 5,0 m 0,8 kN/m
Balstu atstatums 6,0 m 0,25 kN/m
CO2 pēdas nospiedums (GWP) no šūpuļa līdz vārtiem 17,8396 kg CO2e / 1 Metrs
Derīgais šķērsgriezums 118000 mm²
Derīgais šķērsgriezums 1180 cm²
Funkciju nodrošināšana
Gara laiduma izpildījums
Garums 3000 mm
Izmērs 110x1200x3m
Izmērs B 1100 mm
Krāsa cinks
Materiāls Tērauds
Metāla biezums 2 mm
Nerūsējošs tērauds, kodināts
Platums 1200 mm
Sānu caurumi
Sānu malas konstrukcija plakans profils
Spraišļa stiprinājums metināts
Spraišļu izpildījums Necaurumots profils
Virsma karsti cinkots

Tehniskie dati

Slodzes diagramma, kabeļu trepes, tips SLCS 110

Slodzes diagramma, kabeļu trepes, tips SLCS 110
  • Pieļaujamais kabeļu renes/trepju noslogojums kN/m nereķinot slodzi instalācijas laikā Pieļaujamais kabeļu renes/trepju noslogojums kN/m nereķinot slodzi instalācijas laikā
  • Attālums starp balstiem, m Attālums starp balstiem, m
  • Profila izliece mm pie pieļaujamās slodzes kN/m Profila izliece mm pie pieļaujamās slodzes kN/m
  • Slodzes shēma pārbaudes laikā Slodzes shēma pārbaudes laikā
  • Slodzes līkne ar mm izteiktu kabeļu renes/trepju platumu Slodzes līkne ar mm izteiktu kabeļu renes/trepju platumu
  • Profila izlieces līkne atkarībā no balstu attāluma Profila izlieces līkne atkarībā no balstu attāluma
Visi tipi

Visi tipi

Tips Garums Platums Metāla biezums Funkciju nodrošināšana Preces Nr. Daudzums mazākā pārd. vien.
SLCS 1120 3 FT 3000 mm 200 mm 2 mm 6207302
3 m
SLCS 1130 3 FT 3000 mm 300 mm 2 mm 6207304
3 m
SLCS 1140 3 FT 3000 mm 400 mm 2 mm 6207306
3 m
SLCS 1145 3 FT 3000 mm 450 mm 2 mm 6207308
30 m
SLCS 1150 3 FT 3000 mm 500 mm 2 mm 6207310
3 m
SLCS 1160 3 FT 3000 mm 600 mm 2 mm 6207312
3 m
SLCS 1175 3 FT 3000 mm 750 mm 2 mm 6207314
3 m
SLCS 1180 3 FT 3000 mm 800 mm 2 mm 6207316
30 m
SLCS 1190 3 FT 3000 mm 900 mm 2 mm 6207318
30 m
SLCS 11100 3 FT 3000 mm 1000 mm 2 mm 6207320
30 m
SLCS 11120 3 FT 3000 mm 1200 mm 2 mm 6207322
30 m
Lejupielādes

Lejupielāde

ES Atbilstības deklarācija SLCS 11120 3 FT / 6207322 , 0.12MB , pdf
Lejupielāde
Apvienotās Karalistes atbilstības deklarācija SLCS 11120 3 FT / 6207322 , 0.09MB , pdf
Produkta vides deklarācija (EPD) SLCS 11120 3 FT / 6207322 , 1.48MB , pdf
Lejupielāde

Lejupielāde
Lejupielāde

Šim produktam nav pieejami preču apraksti