Kasete ar regulējamu augstumu un kabeļa izvadu, RKSN, nerūsošais tērauds

Preces Nr. 7409218 | EAN 4012195867227

Pagriežams kabeļa izvads
9
Produkta apraksts
Produkta apraksts
Nominālā izmēra 9 kasete ar regulējamu augstumu un kabeļu izeju instalējamo ierīču montāžai sausā vai slapjā veidā kopjamās grīdās iekštelpās.
3 universālo balstu UT4 montāžai 9 atsevišķām instalācijas ierīcēm ar balstgredzenu/stīpas veida rokturi vai 12 moduļa 45 ierīcēm.
Kvadrātveida kasete ar regulējamu augstumu, 3 sekciju, ar nominālā izmēra 9 vadu izeju instalējamo ierīču montāžai. Kasete piemērota lietošanai kanālu sistēmās, dubultajās un dobajās grīdās, sausā veidā kopjamās grīdās iekštelpās. Piemērota tikai gludiem grīdas segumiem. Var uzstādīt 3 APMT5 nosegplāksnes.


  • Elektrotehnikas, elektronikas un informācijas tehnoloģiju apvienība, Vācija
  • Eiropas Savienības, EG atbilstības deklarācija saskaņā ar EK direktīvām
  • UKCA atbilstības deklarācija
  • CO₂ pēdas nospiedums (PCF)
  • Iepakojums pilnībā no otrreiz pārstrādāta kartona
Tehniskie dati

Tehniskie dati

Aizsardzības pakāpes IK kods IK10
Aizsardzības veids (IP) izmantošanas stāvoklī IP20
Aizsardzības veids (IP) neizmantotā stāvoklī IP40
Atdalāms
Atļaujas VDE
Augstuma regulēšanas diapazons maks. 150 mm
Augstuma regulēšanas diapazons min. 105 mm
CO2 pēdas nospiedums (GWP) no šūpuļa līdz vārtiem 20,7553 kg CO2e / 1 Gabals
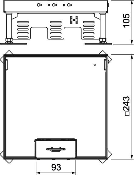
Garums 243 mm
Grīdas augstums maks. 150 mm
Grīdas augstums min. 105 mm
Grīdas kopšana sauss
Grīdas seguma biezums 20 mm
Iebūvējamo ierīču skaits 12
Iebūvēšanas dziļums 105 mm
Iebūvēšanas izmēra garums 244 mm
Iebūvēšanas izmēra platums 244 mm
Iekārtas stiprinājums ierīču kārbu nostiprināšanai
Ierīču kārbu skaits 3
Izmērs 243x243mm
Izmērs H 105 mm
Izpildījums kvadrātisks
Kabeļu izvada izpildījums Pagriežams kabeļa izvads
Lielas slodzes versija
Materiāls Nerūsējošais tērauds 1.4301
Montāžas sistēmas tips UT4
Nominālais lielums 350 mm
Nominālais lielums ierīču iebūvēšanas vienībai 9
Piemērots dubulto grīdu montāžai
Piemērots iebūvēšanai dobās grīdās
Platums 243 mm
Vadu izvadu skaits 1
Vertikālā slodze, liels laukums līdz 5 000 N
Vertikālā slodze, mazs laukums līdz 3 000 N
Visi tipi

Visi tipi

Tips Grīdas augstums min. Grīdas augstums maks. Grīdas seguma biezums Izmērs H Kabeļu izvada izpildījums Nominālais lielums ierīču iebūvēšanas vienībai Preces Nr. Daudzums mazākā pārd. vien.
RKSN2 9 VS 20 105 mm 150 mm 20 mm 105 mm Pagriežams kabeļa izvads 9 7409218
1 Gabals
RKSN2 9 VS 25 110 mm 155 mm 25 mm 110 mm Pagriežams kabeļa izvads 9 7409220
1 Gabals
Piederumi

Sistēmas piederumi

Produkti Tips Preces Nr. Daudzums mazākā pārd. vien.
Augstuma regulators RKNEV2 Augstuma regulators RKNEV2 RK NEV2 110 7405815
10 VPE
Skaņas aizsarguzliktnis Skaņas aizsarguzliktnis SRS 4 7405798
100 Gabals
Mozaīkas grīdas šablons kasetēm ar regulējamu augstumu, nominālais lielums 9 Mozaīkas grīdas šablons kasetēm ar regulējamu augstumu, nominālais lielums 9 SK RK9 7404372
2 Gabals
Montāžas vāks 350, nominālais izmērs 9 Montāžas vāks 350, nominālais izmērs 9 DUG 350-3 9 7400513
1 Gabals
Universālais balsts UT4, ar nosegplāksni Modul 45® ierīcēm, sistēmas garums 208 mm Universālais balsts UT4, ar nosegplāksni Modul 45® ierīcēm, sistēmas garums 208 mm UT4 45 4 7408727
1 Gabals

Montāžas piederumi

Produkti Tips Preces Nr. Daudzums mazākā pārd. vien.
Vakuuma satvērējs, 300 N Vakuuma satvērējs, 300 N WZ 1029 7408634
1 Gabals
Lejupielādes

Lejupielāde

ES Atbilstības deklarācija RKSN2 9 VS 20 / 7409218 , 0.17MB , pdf
Lejupielāde
Apvienotās Karalistes atbilstības deklarācija RKSN2 9 VS 20 / 7409218 , 0.14MB , pdf

Šim produktam nav pieejami preču apraksti