Nosegplāksne VH, iebūvējamai ierīcei Modul 45, vienvietīga

Preces Nr. 6109841 | EAN 4012196101566

Produkta apraksts
Produkta apraksts
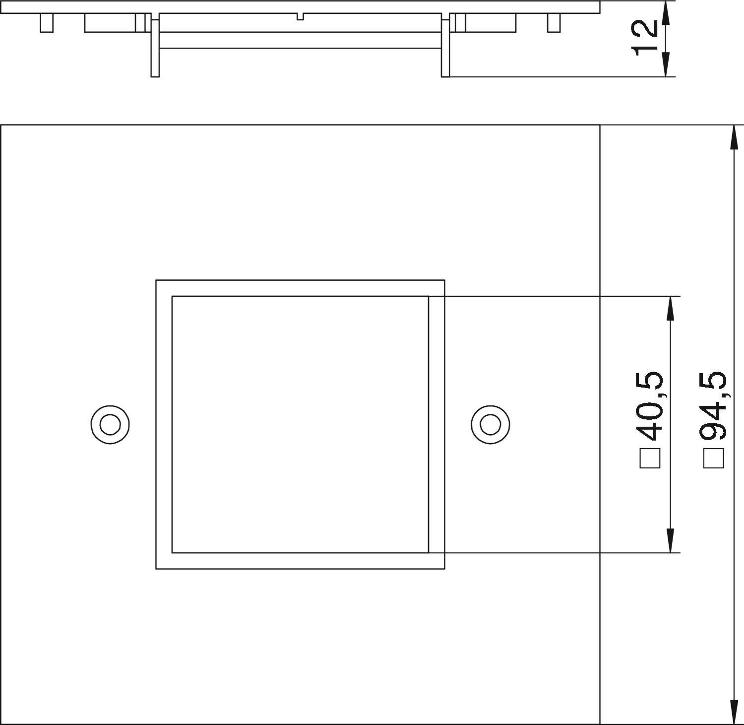
Nosegplāksne vienas vienvietīgas Modul 45 kontaktligzdas iebūvēšanai.
  • Eiropas Savienības, EG atbilstības deklarācija saskaņā ar EK direktīvām
  • CO₂ pēdas nospiedums (PCF)
  • Iepakojums bez plastmasas
Tehniskie dati

Tehniskie dati

Aizsardzības veids IP20
Augstums 94,5 mm
CO2 pēdas nospiedums (GWP) no šūpuļa līdz vārtiem 0,0882 kg CO2e / 1 Gabals
Instalācijas tehnika Režģa izmērs M45
Izmērs 95x95mm
Konstrukcijas veids, atvere stūrains
Krāsa dzidri balts; RAL 9010
Materiāls Poliamīds
Nesatur halogēnus
Platums 94,5 mm
Stiprinājuma veids uzskrūvējams
Tukšais vāks
Vienību skaits 1
Visi tipi

Visi tipi

Tips Preces Nr. Daudzums mazākā pārd. vien.
VH-P4 RW 6109841
10 Gabals
Lejupielādes

Lejupielāde

VH-P4 RW / 6109841
Lejupielāde