Noslēgvāks kārbām UZD350

Preces Nr. 7400577 | EAN 4012195431589

Produkta apraksts
Produkta apraksts
Noslēgvāks bezietvara zemgrīdas izvadu un nozarkārbu UZD350-3/4 gala aizbāznim.
  • Elektrotehnikas, elektronikas un informācijas tehnoloģiju apvienība, Vācija
  • Eiropas Savienības, EG atbilstības deklarācija saskaņā ar EK direktīvām
  • CO₂ pēdas nospiedums (PCF)
Tehniskie dati

Tehniskie dati

CO2 pēdas nospiedums (GWP) no šūpuļa līdz vārtiem 11,2014 kg CO2e / 1 Gabals
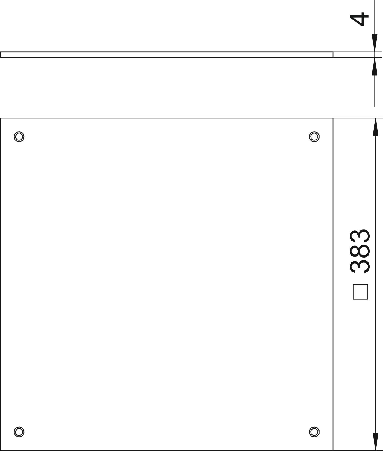
Garums 383 mm
Grīdas kopšana sauss
Iespējams iemontēt blīvi
Izmērs 383x383x4
Izmērs A 383 mm
Lielas slodzes versija
Materiāla biezums 4 mm
Materiāls Tērauds
Montāžas atvere bez
Montāžas atvere virsgrīdas tvertnei
Montāžas atveres pārsegums
Nominālais lielums 350 mm
Piemērots aizvērtam zemgrīdas kanālam vienā līmenī ar grīdas segumu
Piemērots zemgrīdas kanālam, ko pārklāj grīdas segums
Platums 383 mm
Virsma cinkots
Visi tipi

Visi tipi

Tips Izmērs d Ø Preces Nr. Daudzums mazākā pārd. vien.
DU 350-2 7400577
1 Gabals
Lejupielādes

Lejupielāde

ES Atbilstības deklarācija DU 350-2 / 7400577 , 0.13MB , pdf
Lejupielāde

Šim produktam nav pieejami preču apraksti