PYROPLUG® MagicBox, three-sided, interior height 60 mm

Preces Nr. 7204034 | EAN 4012196812066

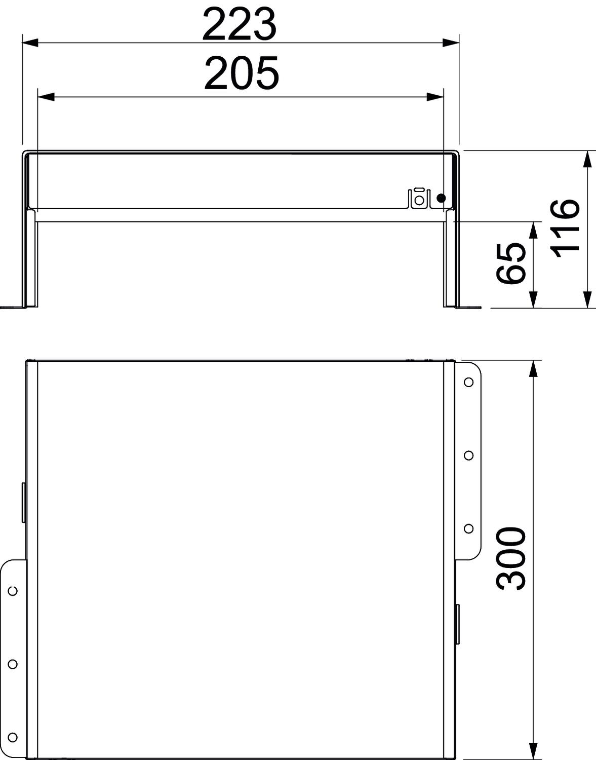
65 mm
Produkta apraksts
Produkta apraksts
Fire protection box as insulation system, made of single-part stainless steel housing with intumescent fire protection inlays. Can be used in walls, on raw floors, beneath system floors and as insulation of rising sections in ceilings. Interior can be fully assigned with installations. For interior application. Closure of the residual openings with PYROSIT® NG fire protection foam, particularly simple for difficult geometries. CE-labelled construction product with general type approval. Fire resistance class EI90 (fire-resistant). Including graphite strip.
  • Eiropas Savienības, EG atbilstības deklarācija saskaņā ar EK direktīvām
Tehniskie dati

Izmēri

Augstums 116 mm
Forma stūrains
Garums 300 mm
Iekšējais augstums 65 mm
Iekšējais platums 205 mm
Izmērs 300x223x116
Izmērs d 205 mm
Izmērs D, min. 223 mm
Krāsa tērauda
Materiāls Nerūsējošais tērauds 1.4301
Nepieciešamie piederumi
Platums 223 mm
Ugunsdrošības instalācija Noblīvējuma kārba
Virsma neizolēts, apstrādāts
Visi tipi

Visi tipi

Tips Iekšējais augstums Iekšējais platums Preces Nr. Daudzums mazākā pārd. vien.
PMB 610-3 A2 65 mm 105 mm 7204030
1 Gabals
PMB 620-3 A2 65 mm 205 mm 7204034
1 Gabals
PMB 630-3 A2 65 mm 305 mm 7204038
1 Gabals
PMB 640-3 A2 65 mm 405 mm 7204042
1 Gabals
PMB 650-3 A2 65 mm 505 mm 7204046
1 Gabals
PMB 660-3 A2 65 mm 605 mm 7204050
1 Gabals
Piederumi

Sistēmas piederumi

Produkti Tips Preces Nr. Daudzums mazākā pārd. vien.
PYROSIT® NG 2 komponentu ugunsdrošības putas PYROSIT® NG 2 komponentu ugunsdrošības putas FBS-S 7203800
1 Gabals

Montāžas piederumi

Produkti Tips Preces Nr. Daudzums mazākā pārd. vien.
Balsta konstrukcijas noblīvējumam, ar balsteni Balsta konstrukcijas noblīvējumam, ar balsteni SKA 05 VZ 7202436
1 Gabals
Balsta konstrukcijas noblīvējumam, ar iekares atbalsta konstrukciju Balsta konstrukcijas noblīvējumam, ar iekares atbalsta konstrukciju SKP 05 VZ 7202446
1 Gabals
Lejupielādes

Lejupielāde

ES Atbilstības deklarācija PMB 620-3 A2 / 7204034 , 0.11MB , pdf
Lejupielāde
Ekspluatācijas īpašību deklarācija PMB 620-3 A2 / 7204034 , 0.73MB , pdf

Lejupielāde
Lejupielāde

Šim produktam nav pieejami preču apraksti