T-veida detaļa EI90 ugunsdrošības kanālam PLCS D091220

Preces Nr. 7217914 | EAN 4012196836772

pelēks
Produkta apraksts
Produkta apraksts
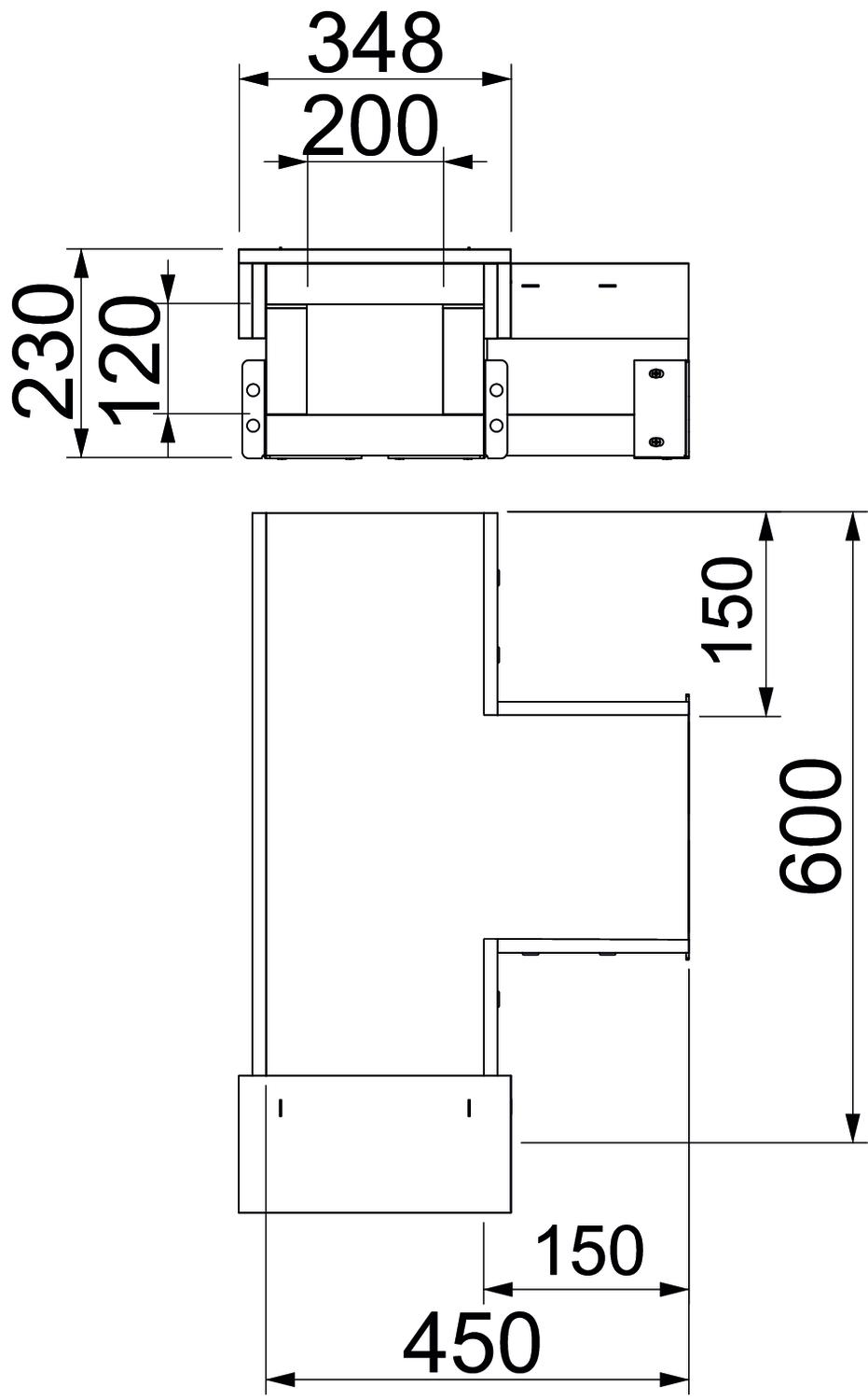
T veida detaļa ugunsdrošajam kanālam PYROLINE® Con S EI90, tips PLCS D091220, kas sastāv no ūdens un salizturīga stikla šķiedras vieglbetona, lai izveidotu T veida atzarojumu kanāla maršrutā. Gatavās samontētās savienošanas detaļas nodrošina ātru montāžu uz vietas, bet brīvi uzliktais vāks – ātru revīziju un iespēju ielikt kabeļus arī vēlāk.


  • Eiropas Savienības, EG atbilstības deklarācija saskaņā ar EK direktīvām
Tehniskie dati

Tehniskie dati

Apvalks bez
Ar perforāciju
EI Klasifikācija - instalācijas kanāls 90
Izmērs 200x120
Izmērs b 200 mm
Izmērs B 348 mm
Izmērs H 230 mm
Izmērs H 120 mm
Izmērs l 450 mm
Izmērs L 600 mm
Izolācijas elementu materiāls Stiklšķiedras gāzbetons
Krāsa pelēks
Materiāls Stikla šķiedras vieglbetons
Saskarē ar liesmu nonākošo sānu skaits 4
Visi tipi

Visi tipi

Tips Izmērs B Izmērs b Izmērs H Izmērs H Krāsa Preces Nr. Daudzums mazākā pārd. vien.
PLCS T090810 248 mm 100 mm 190 mm 80 mm pelēks 7217910
1 Gabals
PLCS T091220 348 mm 200 mm 230 mm 120 mm pelēks 7217914
1 Gabals
Lejupielādes

Lejupielāde

ES Atbilstības deklarācija PLCS T091220 / 7217914 , 0.19MB , pdf
Lejupielāde
Ekspluatācijas īpašību deklarācija PLCS T091220 / 7217914 , 0.31MB , pdf
Lejupielāde

Šim produktam nav pieejami preču apraksti