Ugunsdrošs kanāls PYROLINE® Con S E190

Preces Nr. 7217870 | EAN 4012196836642

1000 mm
Produkta apraksts
Produkta apraksts
Ugunsdrošs kanāls, kas izgatavots no ūdensizturīga un salizturīga stikla šķiedras vieglbetona, būvmanteriālu klase A1, saskaņā ar EN 13501-1 ugunsdrošai kabeļu instalācijai evakuācijas un glābšanas ceļos. Klasifikācija E190 kā instalācijas kanāls saskaņā ar EN 13501-2, pamatojoties uz testiem saskaņā ar EN 1366-5. Ugunsgrēka gadījumā no iekšpuses (kabeļu degšana) tiek novērsta uguns izplatīšanās no viena degoša nodalījuma uz otru.

Kanāla montāža pie sienas kronšteiniem vai kā griestu montāža ar iekārtiem balstiem un kronšteiniem vai uz U veida profila, kas iekārts ar vītņstieņiem. Gatavās samontētās savienošanas detaļas nodrošina ātru montāžu uz vietas, bet brīvi uzliktais vāks – ātru revīziju un iespēju ielikt kabeļus arī vēlāk.
  • Eiropas Savienības, EG atbilstības deklarācija saskaņā ar EK direktīvām
Tehniskie dati

Tehniskie dati

Apvalks bez
Ar perforāciju
EI Klasifikācija - instalācijas kanāls 90
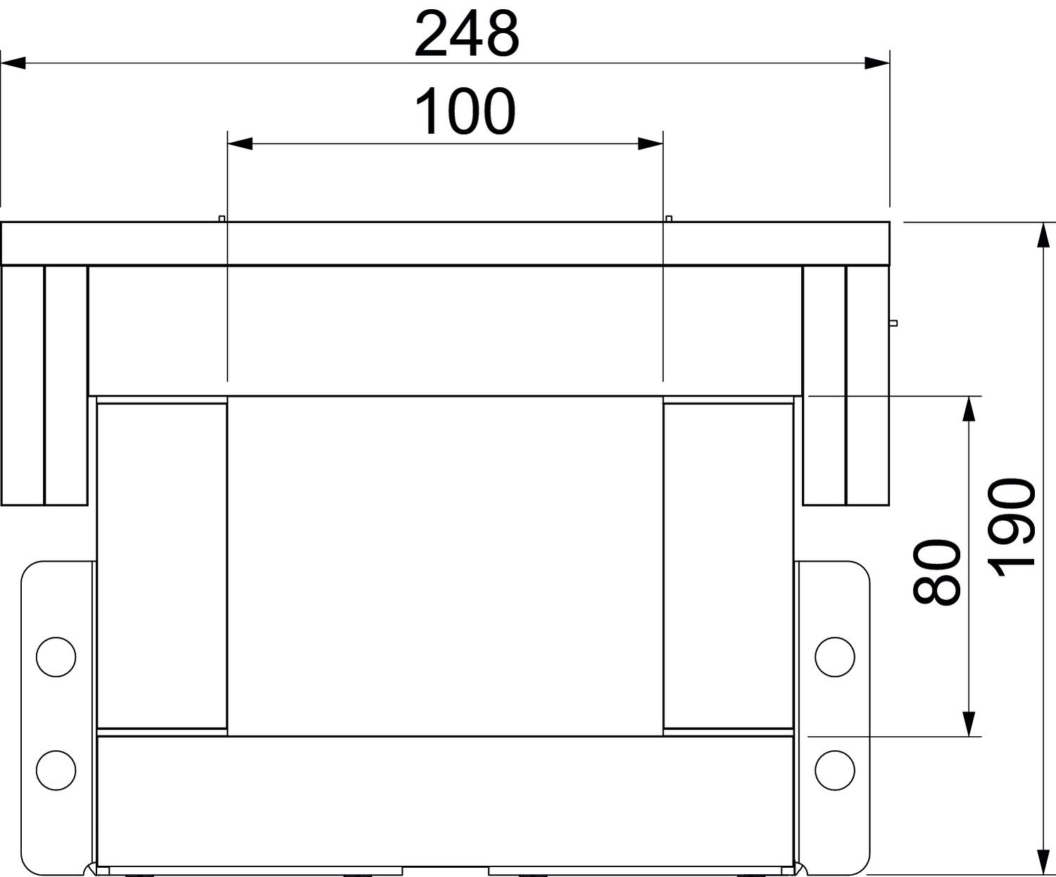
Garums 1000 mm
Izmērs 1000x100x80
Izmērs b 100 mm
Izmērs B 248 mm
Izmērs H 190 mm
Izmērs H 80 mm
Izolācijas elementu materiāls Stiklšķiedras gāzbetons
Krāsa pelēks
Materiāls Stikla šķiedras vieglbetons
Saskarē ar liesmu nonākošo sānu skaits 4
Vāka nostiprināšana atsevišķs
Visi tipi

Visi tipi

Tips Garums Izmērs B Izmērs b Izmērs H Izmērs H Preces Nr. Daudzums mazākā pārd. vien.
PLCS D090810 1000 mm 248 mm 100 mm 190 mm 80 mm 7217870
1 m
PLCS D091220 1000 mm 348 mm 200 mm 230 mm 120 mm 7217874
1 m
Piederumi

Sistēmas piederumi

Produkti Tips Preces Nr. Daudzums mazākā pārd. vien.
90 ° līkums EI90 ugunsdrošības kanālam PLCS D060810 90 ° līkums EI90 ugunsdrošības kanālam PLCS D060810 PLCS B090810 7217890
1 Gabals
T-veida detaļa EI90 ugunsdrošības kanālam PLCS D060810 T-veida detaļa EI90 ugunsdrošības kanālam PLCS D060810 PLCS T090810 7217910
1 Gabals
Uz augšu vērsts vertikāls līkums EI90 ugunsdrošajam kanālam PLCS D060810 Uz augšu vērsts vertikāls līkums EI90 ugunsdrošajam kanālam PLCS D060810 PLCS VR090810 7217930
1 Gabals
Uz leju vērsts vertikāls līkums EI90 ugunsdrošajam kanālam PLCS D060810 Uz leju vērsts vertikāls līkums EI90 ugunsdrošajam kanālam PLCS D060810 PLCS VF090810 7217950
1 Gabals
Gala vāks EI90 ugunsdrošības kanālam PLCS D060810 Gala vāks EI90 ugunsdrošības kanālam PLCS D060810 PLCS E090810 7217990
1 Gabals
Sienas savienojuma manšete EI90 ugunsdrošības kanālam PLCS D060810 Sienas savienojuma manšete EI90 ugunsdrošības kanālam PLCS D060810 PLCS W090810 7217970
1 Gabals
Dubultošanas detaļa ugunsdrošajam kanālam PYROLINE® Con Dubultošanas detaļa ugunsdrošajam kanālam PYROLINE® Con KAD-8040 7215464
1 Gabals
Dubultošanas detaļa ugunsdrošajam kanālam PYROLINE® Con Dubultošanas detaļa ugunsdrošajam kanālam PYROLINE® Con KAD-10040 7215462
1 Gabals
ugunsdrošā kanālu java ugunsdrošā kanālu java KTM 7215500
1 Gabals
Izolējošā putu slāņa aģents kasetnē Izolējošā putu slāņa aģents kasetnē DSX-K 7202300
1 Gabals
Starpsiena 45 FS Starpsiena 45 FS TSG 45 FS 6062033
3 m
Starpsiena 60 FS Starpsiena 60 FS TSG 60 FS 6062068
3 m
Skrūve starplikas nostiprināšanai, KRS 6x30 Skrūve starplikas nostiprināšanai, KRS 6x30 KRS 6x30 3498100
200 Gabals
Lejupielādes

Lejupielāde

ES Atbilstības deklarācija PLCS D090810 / 7217870 , 0.11MB , pdf
Lejupielāde
Ekspluatācijas īpašību deklarācija PLCS D090810 / 7217870 , 0.31MB , pdf
Lejupielāde

Šim produktam nav pieejami preču apraksti