Ugunsdrošs kanāls PYROLINE® Con D E130 - E160

Preces Nr. 7215804 | EAN 4012196836406

1000 mm
Produkta apraksts
Produkta apraksts
Ugunsdrošs kanāls, kas izgatavots no ūdensizturīga un salizturīga stikla šķiedras vieglbetona, būvmanteriālu klase A1, saskaņā ar EN 13501-1 ugunsdrošai kabeļu instalācijai evakuācijas un glābšanas ceļos. Klasifikācija EI30-EI60 kā instalācijas kanāls saskaņā ar EN 13501-2, pamatojoties uz testiem saskaņā ar EN 1366-5. Ugunsgrēka gadījumā no iekšpuses (kabeļu degšana) tiek novērsta uguns izplatīšanās no viena degoša nodalījuma uz otru.

Kanāla montāža tieši pie sienas vai griestiem.
  • Eiropas Savienības, EG atbilstības deklarācija saskaņā ar EK direktīvām
Tehniskie dati

Tehniskie dati

Apvalks bez
Ar perforāciju
EI Klasifikācija - instalācijas kanāls 60
Garums 1000 mm
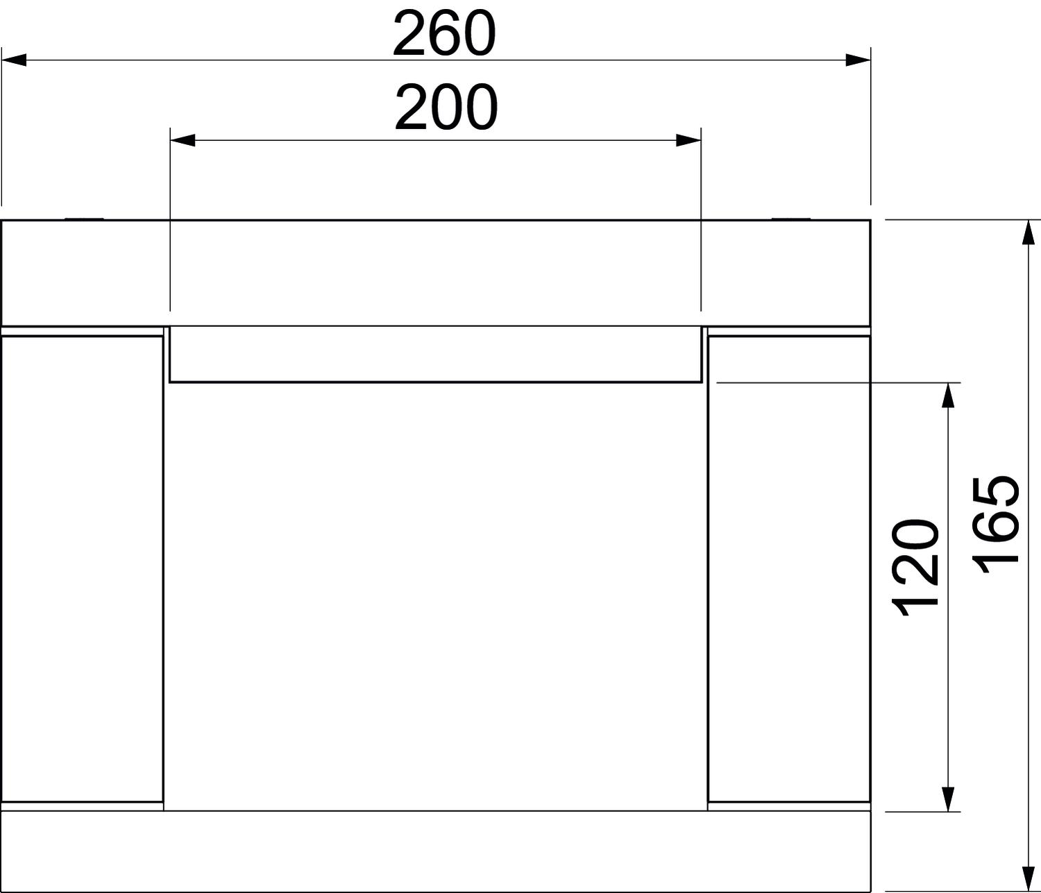
Izmērs 1000x200x120
Izmērs b 200 mm
Izmērs B 260 mm
Izmērs H 165 mm
Izmērs H 120 mm
Izolācijas elementu materiāls Stiklšķiedras gāzbetons
Krāsa pelēks
Materiāls Stikla šķiedras vieglbetons
Saskarē ar liesmu nonākošo sānu skaits 3
Vāka nostiprināšana saskrūvēt
Visi tipi

Visi tipi

Tips Garums Izmērs B Izmērs b Izmērs H Izmērs H Preces Nr. Daudzums mazākā pārd. vien.
PLCD D060810 1000 mm 160 mm 100 mm 125 mm 80 mm 7215800
1 m
PLCD D061220 1000 mm 260 mm 200 mm 165 mm 120 mm 7215804
1 m
Piederumi

Sistēmas piederumi

Produkti Tips Preces Nr. Daudzums mazākā pārd. vien.
Gala vāks EI60 ugunsdrošības kanālam PLCD D061220 Gala vāks EI60 ugunsdrošības kanālam PLCD D061220 PLCD E061220 7215844
1 Gabals
Sienas savienojuma manšete EI60 ugunsdrošības kanālam PLCD D061220 Sienas savienojuma manšete EI60 ugunsdrošības kanālam PLCD D061220 PLCD W061220 7215824
1 Gabals
Dubultošanas detaļa ugunsdrošajam kanālam PYROLINE® Con Dubultošanas detaļa ugunsdrošajam kanālam PYROLINE® Con KAD-8040 7215464
1 Gabals
Dubultošanas detaļa ugunsdrošajam kanālam PYROLINE® Con Dubultošanas detaļa ugunsdrošajam kanālam PYROLINE® Con KAD-10040 7215462
1 Gabals
ugunsdrošā kanālu java ugunsdrošā kanālu java KTM 7215500
1 Gabals
Izolējošā putu slāņa aģents kasetnē Izolējošā putu slāņa aģents kasetnē DSX-K 7202300
1 Gabals
Starpleņķis montāžai pie sienas Starpleņķis montāžai pie sienas PLCD-SB1220 7215484
25 Gabals
Atdalošā apskava griestu montāžai Atdalošā apskava griestu montāžai PLCD-SC1220 7215494
25 Gabals
Vadu turētājs, vertikāls PYROLINE® ugunsdrošajiem kanāliem, augstums 20 mm Vadu turētājs, vertikāls PYROLINE® ugunsdrošajiem kanāliem, augstums 20 mm LHS 20 7215288
10 Gabals
Vadu turētājs, vertikāls PYROLINE® ugunsdrošajiem kanāliem, augstums 40 mm Vadu turētājs, vertikāls PYROLINE® ugunsdrošajiem kanāliem, augstums 40 mm LHS 40 7215290
10 Gabals
Vadu turētājs, vertikāls PYROLINE® ugunsdrošajiem kanāliem, augstums 60 mm Vadu turētājs, vertikāls PYROLINE® ugunsdrošajiem kanāliem, augstums 60 mm LHS 60 7215292
10 Gabals
Lejupielādes

Lejupielāde

ES Atbilstības deklarācija PLCD D061220 / 7215804 , 0.11MB , pdf
Lejupielāde
Ekspluatācijas īpašību deklarācija PLCD D061220 / 7215804 , 0.31MB , pdf
Lejupielāde

Šim produktam nav pieejami preču apraksti